海灣氣體滅火主機GST-QKP04廠家/資料/接線安裝圖
海灣氣體滅火主機GST-QKP04廠家/資料/接線安裝圖
一,主要技術指標
(1) 工作電壓:交流AC220V 50/60Hz ,允許電壓變化范圍 AC176V~AC264V;
(2) 功耗:監視狀態功耗≤30W;大功耗≤380W;
(3) 備用電源:2 個DC12V/7Ah 密封鉛電池;
(4) 氣體噴灑輸出:各區DC24V/3A,脈沖方式/持續方式,可調;
(5) 電池充電電流:1.0A~1.7A;
(6) 液晶屏規格﹕128×64 點,可同屏顯示32 個漢字信息;
布線要求:
1)各區通信總線(Z1,Z2)和電源輸出(+24V,GND)連接線應選用截面積≥1.0mm2 的雙絞線,長不超過500m,導線電阻應小于5Ω。
2)各區驅動鋼瓶輸出端(DC+,DC-)連接線應選用截面積≥1.5 mm2 RV 線。如果電纜長度大于50m,則選用截面積≥2.5mm2 RV 線。應計算線損壓降、保證電磁閥的低工作電壓。
3)各區噴灑反饋信號輸入端(YK1,YK2)連接線應選用截面積≥1.0mm2 RV 線。外接通訊連線應選用截面積≥1.0mm2 雙絞線,配置CAN 通訊卡時大線長不超過3000m。
4)交流電源線應采用耐壓 750V 以上的三芯絕緣線。
5)機殼接地線宜用 4mm2 的銅導線,接地電阻應小于4Ω。
二,技術特性
(1) 容量
GST-QKP04 可帶4 個區的氣體滅火設備,實現對4 個防護區的保護;GST-QKP04/2 可帶2 個區的氣體滅火設備,實現對2 個防護區的保護。其中每個區所帶設備及數量如下:
1)電磁閥:1 個,額定電壓DC24V,大電流3A;
2)壓力開關:1 個,常開觸點,動作時閉合;
3)聲光警報器:1~10 個,編碼地址范圍1~10;
4)氣體釋放警報器:1~6 個,編碼地址范圍11~20;
5)緊急啟/停按鈕和手自動轉換開關:共1~10 個,編碼地址范圍21~30;
6)輸出模塊:1~6 個,編碼地址范圍31~40。
GST-QKP04 多可同時啟動2 個區的氣體滅火設備釋放滅火劑進行滅火。
(2) 線制
線制距離負載或連接設備
各區通信總線24V <0.5km 32 只總線設備
各區電源線DC24V <0.5km 每區小于0.65A
CAN 總線 <3.0km 火災報警控制器(聯動型)
(3) 使用環境
1)工作溫度:0℃~40℃
2)相對濕度≤95%,不凝露
(4) 外形尺寸:寬420mm×厚200mm×高590mm
三,結構特征、安裝與布線
氣體滅火控制器的外形示意圖如圖5-7所示。左邊為GST-QKP04,右邊為GST-QKP04/2。
GST-QKP04、GST-QKP04/2氣體滅火控制器外形尺寸圖

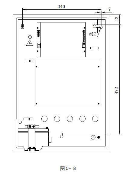
氣體滅火控制器采用壁掛式安裝,安裝尺寸如圖5-8 所示。用3 個M6 的膨脹螺栓將GST-QKP04固定在牢固的墻壁上,膨脹螺栓的水平間距為340mm,高度相距472mm。
GST-QKP04、GST-QKP04/2氣體滅火控制器安裝示意圖

氣體滅火控制器外接端子如圖5-9所示。

GST-QKP04、GST-QKP04/2氣體滅火控制器接線端子示意圖
其中:
1)L、G、PG:交流220V 接線端子。
2)AH1、BL1/AH2、BL2:連接火災報警控制器(聯動型)的通訊總線端子。
3)Z1、Z2:各區的總線輸出端子,連接緊急啟/停按鈕、聲光警報器、氣體釋放警報器、輸出模塊、手自動轉換開關等總線設備。
4)+24V、GND:各區的輔助電源輸出端子,為現場的系統設備如聲光警報器、氣體釋放警報器和輸出模塊供電。
5)DC+、DC-:各區滅火氣體啟動電磁閥的驅動信號輸出端子,平時該端子間輸出電壓小于DC0.7V,啟動時輸出DC24V 電壓且大2A 的信號。終端匹配電阻為4.7kΩ/0.25W。
6)YK1、YK2:各區氣體釋放反饋信號輸入端,應輸入動合型干觸點信號。其終端匹配電阻為4.7kΩ/0.25W。
此價格為網絡報價,更多的資料和更優惠的價格請訪問
智淼君安(江蘇)消防工程技術有限公司http://www.szzhigang.cn/海灣消防公司主營:海灣消防報警系統銷售,消防設備安裝,海灣氣體滅火、海灣電氣火災、消防水噴淋系統施工安裝,售后維修,海灣消防網站:http://www.szzhigang.cn/;海灣消防服務熱線:4006-598-119
本頁關鍵詞:海灣氣體滅火主機GST-QKP04廠家/資料/接線安裝圖
上一篇:氣體滅火系統管道安裝 下一篇:海灣氣體滅火控制器GST-QKP01安裝接線圖


蘇公網安備32058102002147號