新標準下的防排煙設計與實物圖
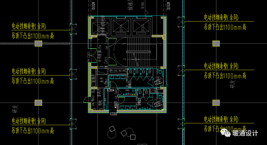
1、敞開樓梯間與走道之間的電動擋煙垂壁


2、儲煙倉內有部分門洞,設置電動擋煙垂壁


3、排煙天窗與周邊開口之間的防火措施



4、教室內的高位窗設置手動開啟裝置

5、走道處的擋煙垂壁,活動式和固定式


6、風雨操場排煙天窗及手動開啟裝置



海灣消防公司主營:海灣消防報警系統銷售,消防設備安裝,海灣氣體滅火、海灣電氣火災、消防水噴淋系統施工安裝,售后維修,海灣消防網站:http://www.szzhigang.cn/;海灣消防服務熱線:4006-598-119
本頁關鍵詞:新標準下的防排煙設計與實物圖
上一篇:最全CAD圖例集||安全、環保、消防、化工、儀表、暖通、給排水。。。都需要 下一篇:海灣消防設備JB-QB-GST9000基礎操作
技術資料更多 >>


蘇公網安備32058102002147號