設計實例參考|新標準對防排煙風管材料的耐火極限要求
根據《建筑防煙排煙系統技術標準》相關規定,防排煙風管的耐火極限有以下要求:
一、機械加壓送風管道的設置和耐火極限應符合下列規定:
1 豎向設置的送風管道應獨立設置在管道井內,當確有困難時,未設置在管道井內或與其他管道合用管道井的送風管道,其耐火極限不應低于1.00h ;

2 水平設置的送風管道,當設置在吊頂內時,其耐火極限不應低于0.50h;當未設置在吊頂內時,其耐火極限不應低于1.00h。


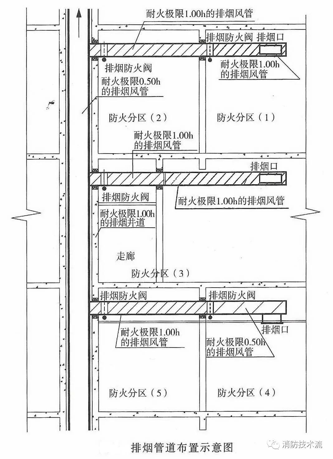
二、排煙管道的設置和耐火極限應符合下列規定:
1 排煙管道及其連接部件應能在280℃時連續30min保證其結構完整性。
2 豎向設置的排煙管道應設置在獨立的管道井內,排煙管道的耐火極限不應低于0.50h。
3 水平設置的排煙管道應設置在吊頂內,其耐火極限不應低于0.50h;當確有困難時,可直接設置在室內,但管道的耐火極限不應小于1.00h。
4 設置在走道部位吊頂內的排煙管道,以及穿越防火分區的排煙管道,其管道的耐火極限不應小于1.00h,但設備用房和汽車庫的排煙管道耐火極限可不低于0.50h。

規范條文說明:為使整個防排煙系統在火災時能發揮正常的防排煙功能,以及防止火焰燒壞風管而蔓延到其他防火分區,提高系統可靠性,除了風口和風機不能受火焰和煙氣的威脅外,還應保證其風道的完整性和密閉性。常用的風道是采用鋼板制作的,在燃燒的火焰中,它很容易變形和損壞,因此要求風管道設置在管道井內,并不應與其他管道合用管道井。未設置在管道井內或與其他管道合用管道井的風管道,在發生火災時從管道外部受到煙火侵襲的概率高,規定未設置在獨立管道井內的風管應有耐火極限的要求。對于管道的耐火極限的判定也應按照現行國家標準《通風管道耐火試驗方法》GB/T 17428的測試方法,當耐火完整性和隔熱性同時達到時,方能視作符合要求。

設計實例:廣州某住宅建設工程地下車庫機械排煙系統

說明
1、地下車庫設置與平時排風合用的排煙系統,排風(煙)系統按防火分區設置,排煙風機按防煙分區設置。
2、耐火極限不小于0.5h的風管(如車庫排煙管、消防補風風管、前室吊頂內的加壓風管),外表面均勻刷防火漆涂料3遍。
3、耐火極限不小于1h的風管(如不在吊頂內水平設置的加壓風管、內走道及非機動車庫排煙管),外表面作防火包裹處理。包裹材料:9mm纖維增強硅酸鹽防火板+50mm巖棉。
4、消防風管的支吊架均刷防火涂料3遍。



自我思考:固定防火板的螺絲或風管支吊架是否能滿足與風管同樣時間的耐火極限呢?
智淼君安(江蘇)消防工程技術有限公司http://www.szzhigang.cn/海灣消防公司主營:海灣消防報警系統銷售,消防設備安裝,海灣氣體滅火、海灣電氣火災、消防水噴淋系統施工安裝,售后維修,海灣消防網站:http://www.szzhigang.cn/;海灣消防服務熱線:4006-598-119
本頁關鍵詞:設計實例參考|新標準對防排煙風管材料的耐火極限要求
上一篇:地下車庫常用的兩種通風排煙系統對比 下一篇:一部“三合一”場所專屬消防規范——《住宿與生產儲存經營合用場所消防安全技術要求》


蘇公網安備32058102002147號